Discover the engineering excellence and sustainable design that makes Transvilla Space Pods the premier choice for modular living. Every detail is crafted for comfort, durability, and environmental responsibility.
Every Space Pod is engineered with sustainability at its core. We use eco-friendly materials, minimize waste during production, and design for longevity. Our modular approach means less environmental impact and maximum resource efficiency.


Our innovative modular design allows for rapid deployment and easy relocation. Each Space Pod can be transported and installed in different locations without compromising structural integrity or comfort.
Step inside and experience luxury in every detail. Our interiors feature high-end finishes, smart space utilization, and modern amenities that rival traditional homes. Every room is designed for comfort and functionality.


Experience the future of living with integrated smart home technology. Every Space Pod comes equipped with premium smart systems for complete control and convenience.
Built to last for decades, our Space Pods feature robust construction and high-quality materials. Minimal maintenance requirements mean you can enjoy your home without worry. Our commitment to durability ensures excellent value over time.

Premium materials and engineering ensure durability and longevity
Advanced insulation and smart systems minimize energy consumption
Integrated smart home systems for modern convenience
Premium living environment with flexible design options
Perfect for individuals or couples seeking a minimalist lifestyle. Efficient use of space with all essential amenities.
KEY FEATURES
Ideal for small families or those wanting more space. Balanced design with comfortable living areas.
KEY FEATURES
Enhanced living space with flexible room configurations. Perfect for growing families.
KEY FEATURES
Spacious and luxurious design with premium finishes. Maximum comfort and functionality.
KEY FEATURES
Ultimate modular living experience. Premium materials and cutting-edge design throughout.
KEY FEATURES

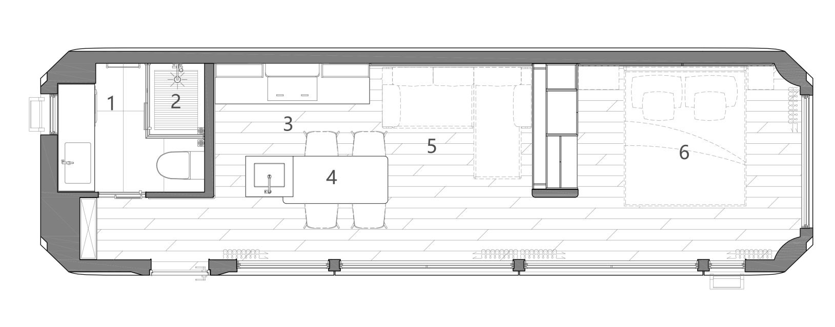
The 38m² Executive model showcases our expertise in space optimization. Every square meter is thoughtfully designed to maximize comfort and functionality while maintaining an open, airy feel.
Spacious bedroom with ample natural light and built-in storage
Fully equipped with premium appliances and ample counter space
One full bathroom with high-end fixtures and finishes
Open-plan living area perfect for entertaining and relaxation

Contemporary design meets functionality

Premium finishes throughout

Abundant windows for bright, airy spaces

Built to withstand time and elements
Visit our showroom or contact us today to explore our Space Pod models in person.
Be the first to know about new Space Pod models, exclusive pre-launch offers, and sustainable living tips from our experts.
We respect your privacy. Unsubscribe at any time. By subscribing, you agree to receive marketing emails from Transvilla.